
Nous racontons une nouvelle histoire avec le bâtiment existant
QUE COMPREND LA MISSION AUTORISATION DE CONSTRUIRE + ÉTUDES DE PROJET ?
Les études de conception architecturale, l'élaboration du dossier de demande administrative de votre projet d'architecture personnalisé et du dossier de consultation des entreprises
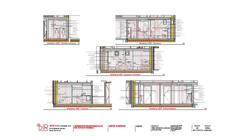
MISSION AUTORISATION DE CONSTRUIRE + ÉTUDES DE PROJET - EXEMPLE DE RENDU

ESQUISSE
L'architecte maitre d’œuvre analyse le programme établi avec le maître d'ouvrage, visite les lieux, prend connaissance des données techniques, juridiques et financières qui lui sont communiquées par le maître d'ouvrage.
Il établit les études préliminaires qui ont pour objectifs de vérifier la constructibilité de l’opération au regard des règles d’urbanisme, de vérifier sa faisabilité technique et financière, d’établir une esquisse du projet répondant au programme.
Il établit une estimation provisoire du coût prévisionnel des travaux et le calendrier prévisible de leur réalisation.
Il se prononce sur l'adéquation de l’enveloppe financière et du calendrier prévisionnel du maître d’ouvrage avec les éléments du programme.
ÉTUDES D'AVANT-PROJET
L'architecte maitre d’œuvre arrête en plans, coupes et façades les dimensions de l'ouvrage, précise son aspect, présente les solutions retenues, détermine les surfaces de tous les éléments du programme et établit la notice descriptive précisant la nature des matériaux extérieurs.
L'architecte maitre d’œuvre établit l'estimation du coût prévisionnel des travaux qui tient compte de l’ensemble des travaux nécessaires à la réalisation de l’ouvrage, déduction faite du montant des travaux que se réserve le maître d’ouvrage.
L’architecte maitre d’œuvre s’assure de la compatibilité de son estimation avec l’enveloppe financière et le calendrier prévisionnel du maître d’ouvrage.
DOSSIER DE DEMANDE D'AUTORISATION DE CONSTRUIRE
▪ Élaboration du dossier de demande d'autorisation de construire
L'architecte maitre d’œuvre établit et signe les documents graphiques et autres pièces écrites de sa compétence, nécessaires à la constitution du dossier de demande de d'autorisation de construire suivant la réglementation en vigueur.
Il assiste le maître d’ouvrage pour la constitution du dossier administratif après lui avoir indiqué le contenu obligatoire de ce dossier et les pièces dont la fourniture lui incombe.
▪ Instruction du dossier de demande d'autorisation de construire
Postérieurement au dépôt du dossier en mairie, l'architecte maitre d’œuvre assiste le maître d’ouvrage, à sa demande, dans ses rapports avec l’administration.
ÉTUDES DE PROJET
L’architecte maitre d’œuvre, après avoir vérifié les conditions de leur mise en œuvre et l’incidence financière qui en découle, précise par des plans, coupes, et élévations les formes des différents éléments de la construction.
L'architecte maitre d’œuvre établit l’ensemble des spécifications détaillées des ouvrages sous la forme d'un Cahier des Clauses Techniques Particulières (C.C.T.P.) comprenant, pour chaque corps d’état :
▪ un document écrit descriptif des ouvrages, précisant leur nature et leur qualité; ce document fixe les limites de chaque marché s’il est commun à plusieurs marchés.
▪ s’il y a lieu, des pièces annexées fournissant aux entrepreneurs des données complémentaires pour l’exécution des travaux.
L’architecte maitre d’œuvre établit un coût prévisionnel des travaux, par corps d’état et détermine le calendrier prévisible du déroulement de l’opération.


